关于杨浦滨江创智中心-1建设工程设计方案的公示 发布日期:2022-12-12
关于杨浦滨江创智中心-1建设工程设计方案的公示
2022年12月12日 上海市规划和自然资源局
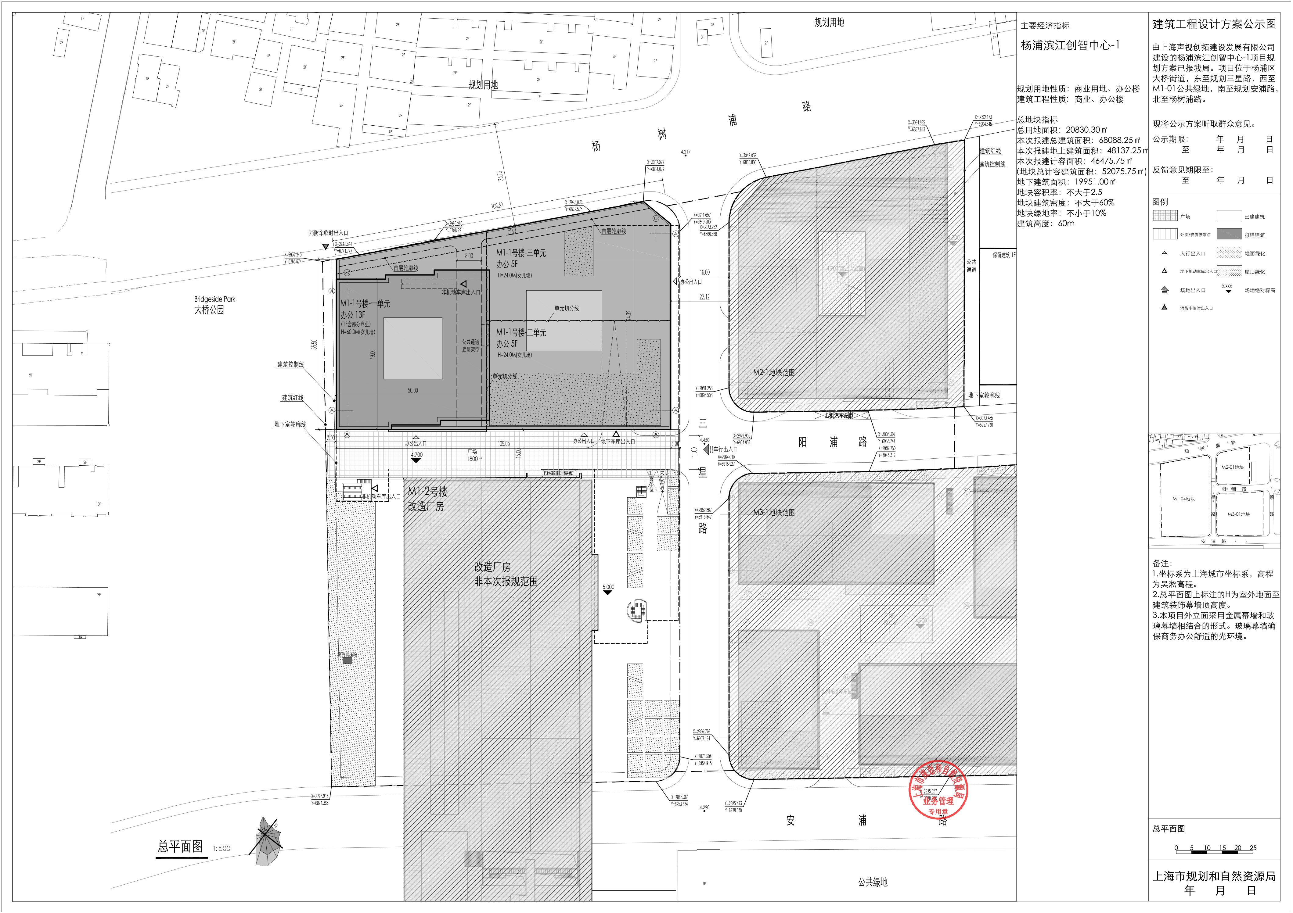
根据上海市建设工程设计方案规划公示的有关规定,现将上海声视创拓建设发展有限公司杨浦滨江创智中心-1设计方案公示如下:

一、建设项目地址/建设用地范围:杨浦区大桥街道 东至规划三星路,南至规划安浦路,西至M1-01公共绿地,北至杨树浦路
二、规划用地性质:商业服务业用地,商务办公用地
三、建筑工程性质:商业服务业用地,商务办公用地
四、公示期限:2022年12月12日 至 12月21日
五、收集公众意见时间:2022年12月12日 至 12月28日
六、意见反馈途径:公众可通过现场意见箱、信函、电子邮件等方式反馈意见。
联系电话:63193188-06053
电子邮箱:shgtjjgc@163.com
联系地址:北京西路99号
已在广德路77号大门附近、杨树浦路广德路路口西南侧工地围墙设立现场意见箱,接收书面意见。相关单位或个人如对本项目设计方案有意见,请在收集公众意见时间内及时反馈。
上海市规划和自然资源局
2022年12月12日