关于上海浦东国际机场四期扩建工程市政配套 工程(B1 雨污水合建泵站)建设工程设计方案的公示 发布日期:2023-11-07
关于上海浦东国际机场四期扩建工程市政配套 工程(B1 雨污水合建泵站)建设工程设计方案的公示
2023年11月07日 上海市规划和自然资源局
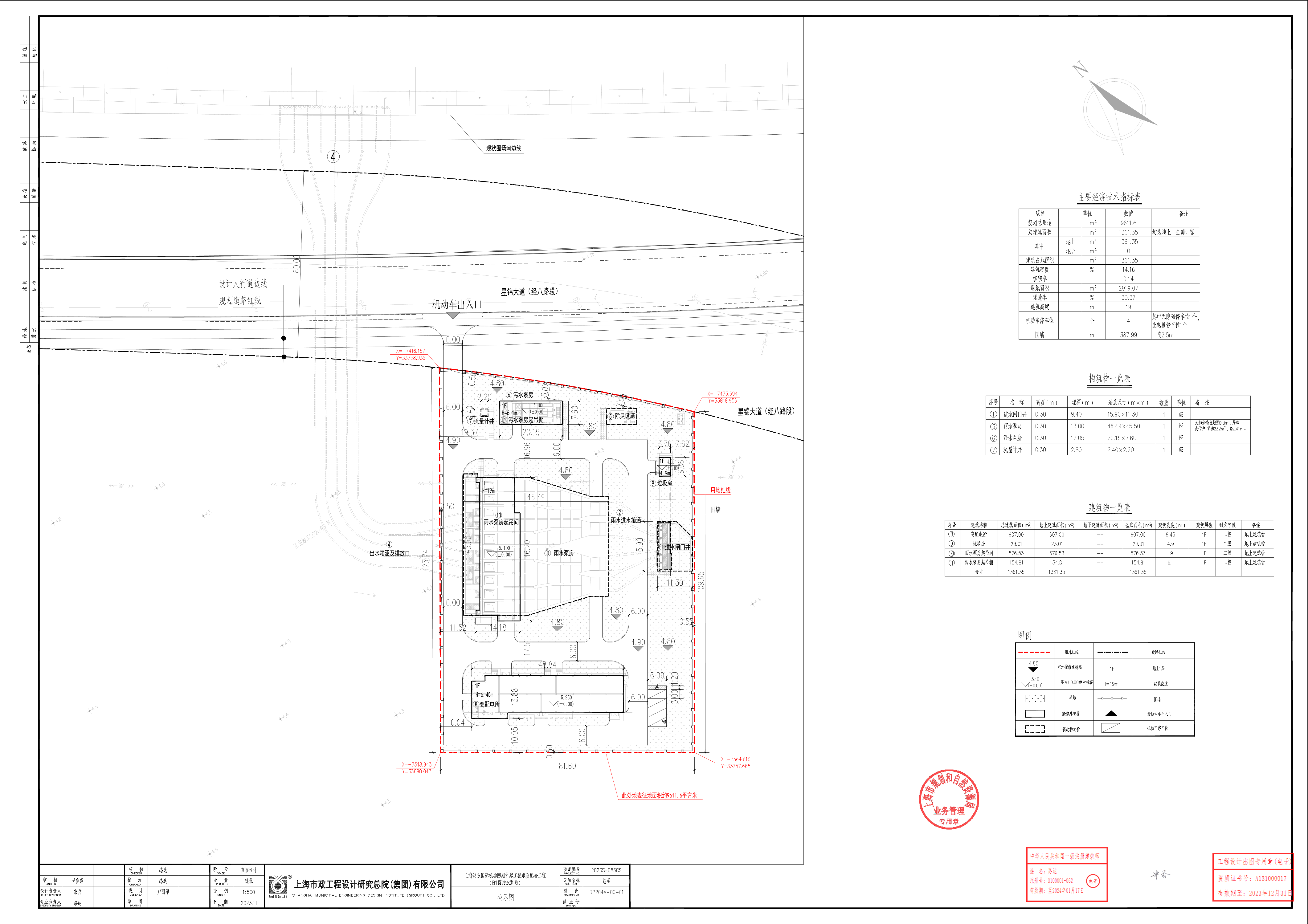
根据上海市建设工程设计方案规划公示的有关规定,现将上海机场(集团)有限公司上海浦东国际机场四期扩建工程市政配套 工程(B1 雨污水合建泵站)设计方案公示如下:

一、建设项目地址/建设用地范围:浦东新区祝桥镇 东至星锦大道,南至浦东机场未开发用地,西至浦东机场飞行区,北至经八路
二、规划用地性质:机场用地
三、建筑工程性质:机场用地
四、公示期限:2023年11月07日 至 11月16日
五、收集公众意见时间:2023年11月07日 至 11月23日
六、意见反馈途径:公众可通过现场意见箱、信函、电子邮件等方式反馈意见。
联系电话:18101893687
电子邮箱:guyingtao@shairport.com
联系地址:浦东新区启航路300号401室
已在浦东新区启航路300号401室设立现场意见箱,接收书面意见。相关单位或个人如对本项目设计方案有意见,请在收集公众意见时间内及时反馈。
上海市规划和自然资源局
2023年11月07日