关于东方枢纽上海东站集疏运道路新建工程地上高架道路(除金亭公路外)建设工程设计方案的公示 发布日期:2024-01-10
关于东方枢纽上海东站集疏运道路新建工程地上高架道路(除金亭公路外)建设工程设计方案的公示
2024年01月10日 上海市规划和自然资源局
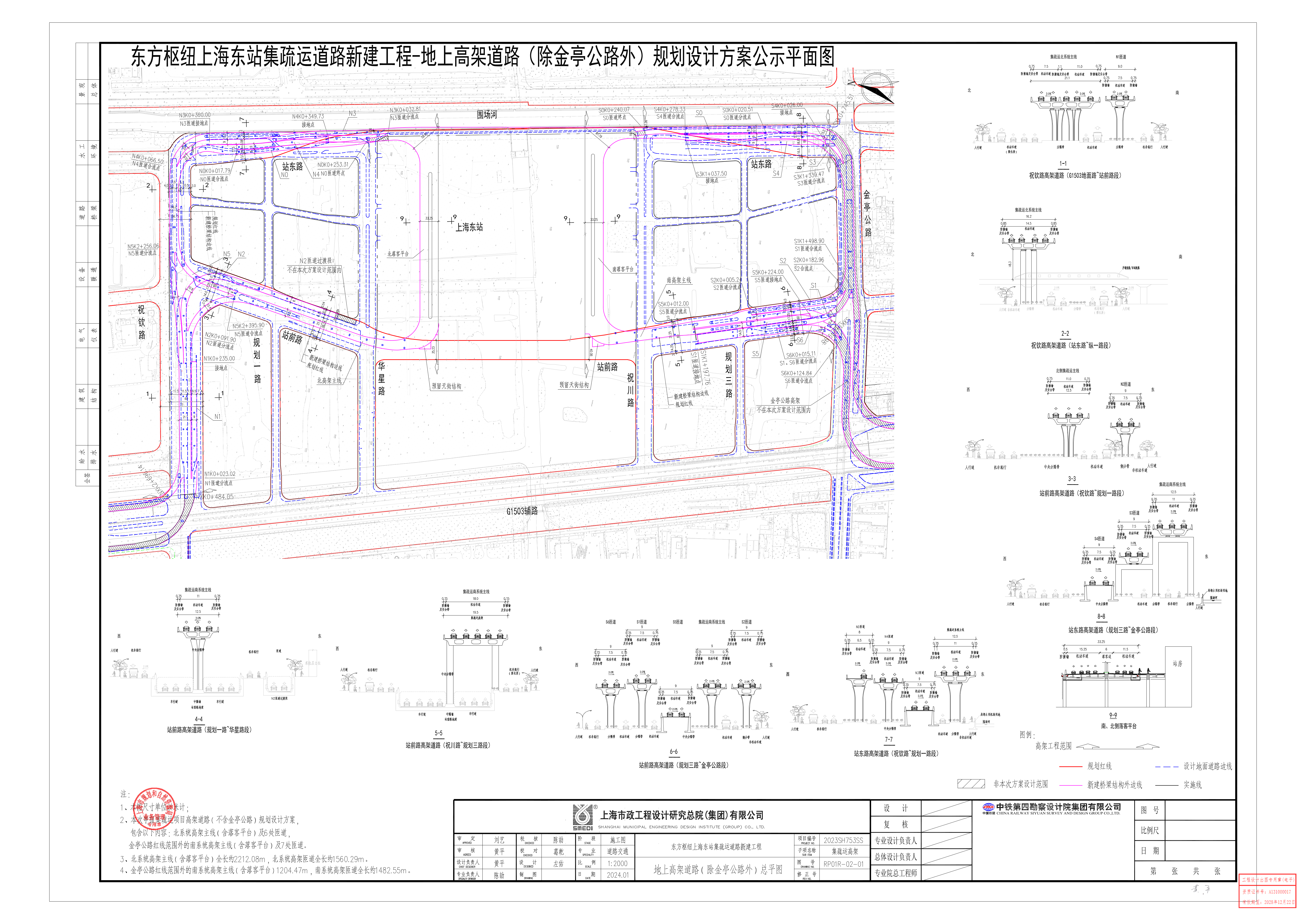
根据上海市建设工程设计方案规划公示的有关规定,现将上海东方枢纽投资建设发展集团有限公司东方枢纽上海东站集疏运道路新建工程地上高架道路(除金亭公路外)设计方案公示如下:

一、建设项目地址/建设用地范围:浦东新区祝桥镇 东至围场河,南至金亭公路,西至G1503,北至祝钦路
二、规划用地性质:道路广场用地
三、建筑工程性质:道路
四、公示期限:2024年01月11日 至 01月20日
五、收集公众意见时间:2024年01月11日 至 01月27日
六、意见反馈途径:公众可通过现场意见箱、信函、电子邮件等方式反馈意见。
联系电话:13601881585
电子邮箱:PDZQgjb@126.com
联系地址:卫亭路80号
已在施工现场和卫亭路80号设立现场意见箱,接收书面意见。相关单位或个人如对本项目设计方案有意见,请在收集公众意见时间内及时反馈。
上海市规划和自然资源局
2024年01月10日